...
İstanbul / Başakşehir
Modern yaşamın sınırlarını aşan lüks ve konforun buluştuğu yer!

Kent Neriva

KENT Neriva, geniş ulaşım imkanlarını bir arada bulunduran, yaşamla alışverişi şık bir mimariyle bütünleştiren Başakşehir’in butik yaşam anlayışıyla tasarlanmış en iddialı lüks konut projesi

Modern yaşamın sınırlarını aşan lüks ve konforun buluştuğu yer!

İki blok olarak tasarlanan proje 37 bin metrekare kapalı alanda, 74 metrekare ile 306 metrekare arasında değişen, 1+1 ve 6+1 arasında olmak üzere 83 adet daire ve 29 adet cadde mağazasından oluşuyor. Başakşehir Şehir Hastanesi’ne, Olimpiyat Stadı’na ve Olimpa AVM’ye sadece 5 dakika; İstanbul Esenler Otogarı’na ise sadece 20 dakikalık mesafe yakınlıkta.

Fitness, aerobik ve spor salonları, SPA, bilardo salonu, çocuk oyun alanlarından, kapalı otoparkı, açık terası gibi sosyal imkanlarıyla bir konut projesinden fazlasını sunuyor. 29 mağazadan oluşan modern cadde çarşısı ve önünde bulunan metro istasyonu da önemli avantajlar arasında yer alıyor.
 

83


Konut

5


dakika mesafede hastane

37000


m2 alan

29


Mağaza

PROJE GÖRSELLERİ

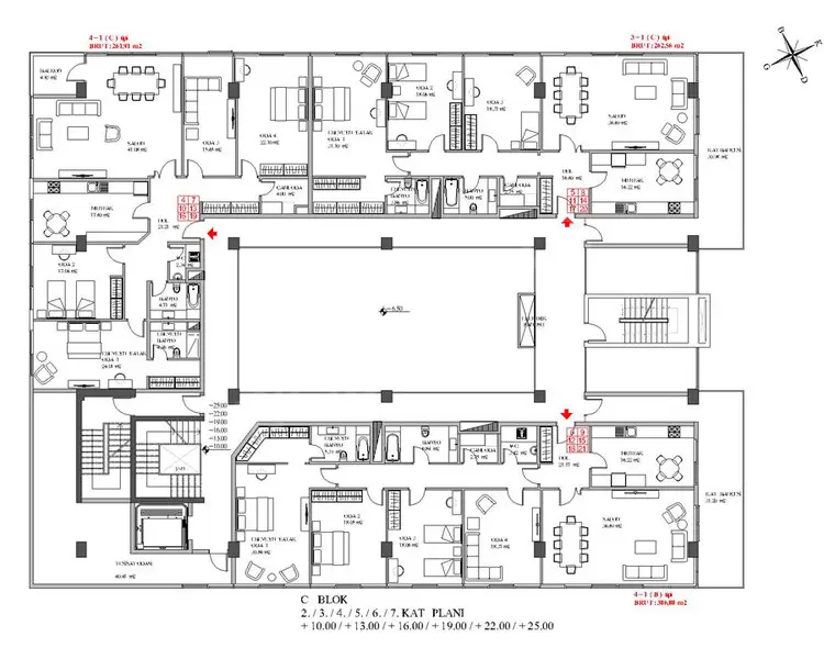
KAT PLANLARI


Muhteşem Bir Yaşamın Kapılarını Aralayın!

Size özel, modern ve işlevsel bir yaşamın anahtarını sunuyoruz. Kat planlarımız, hayallerinizdeki evi gerçeğe dönüştürecek özenli tasarımlarla dolu. Sadece bir konut projesinden daha fazlasını sunan bu projede, size ve sevdiklerinize kaliteli bir yaşamın kapılarını aralıyoruz

Proje İletişim Bilgileri

Satış Ofisi

Başak, Firuzağa, 34425 Başakşehir/İstanbul

Telefon:

0850 532 4225

Projelerimizle ilgili daha fazla bilgi almak ve bize ulaşmak için aşağıdaki formu doldurmanız yeterlidir. Ekip arkadaşlarımız en kısa sürede sizinle iletişim kuracaklardır. Lütfen aşağıdaki bilgileri doğru ve eksiksiz bir şekilde doldurunuz.